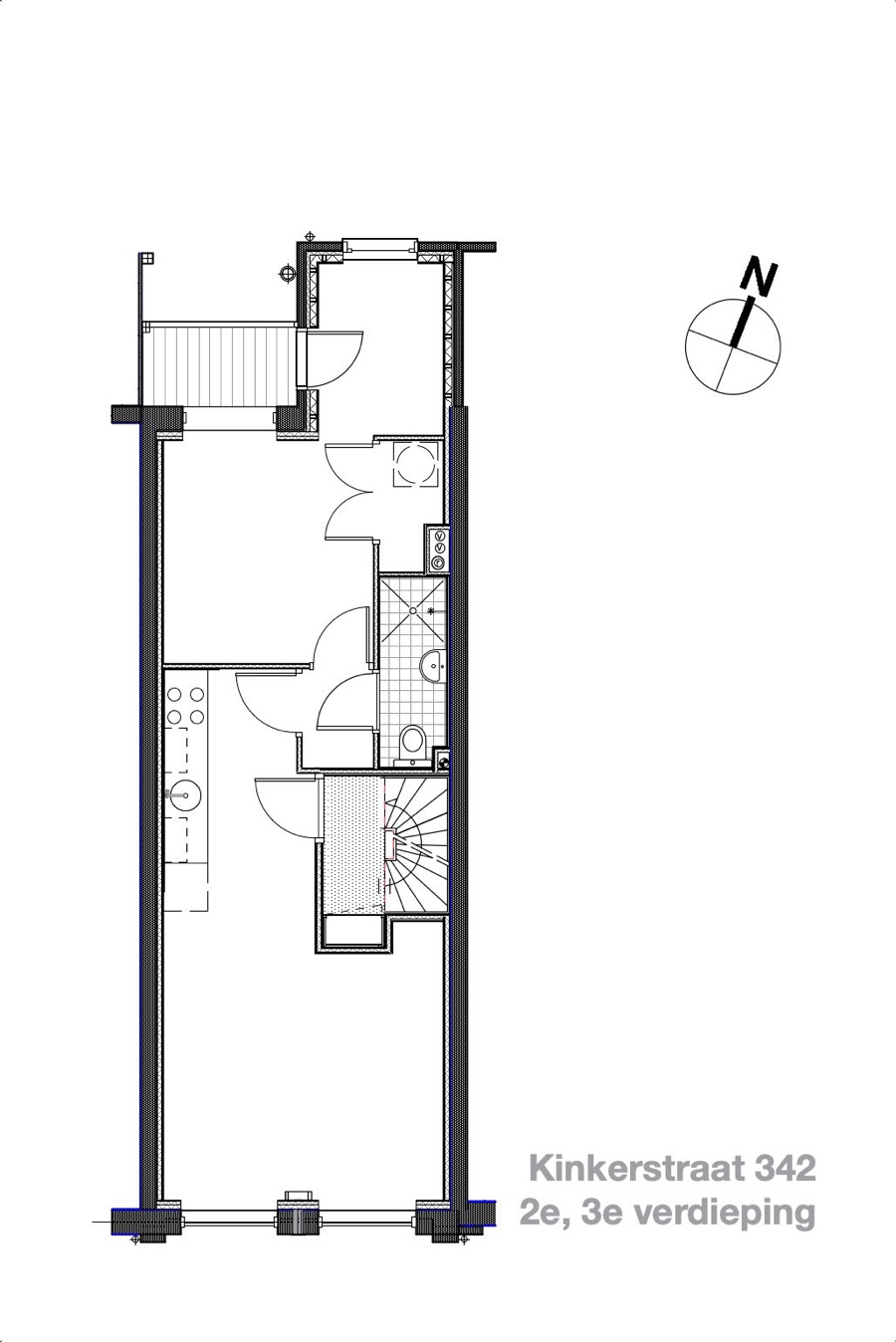
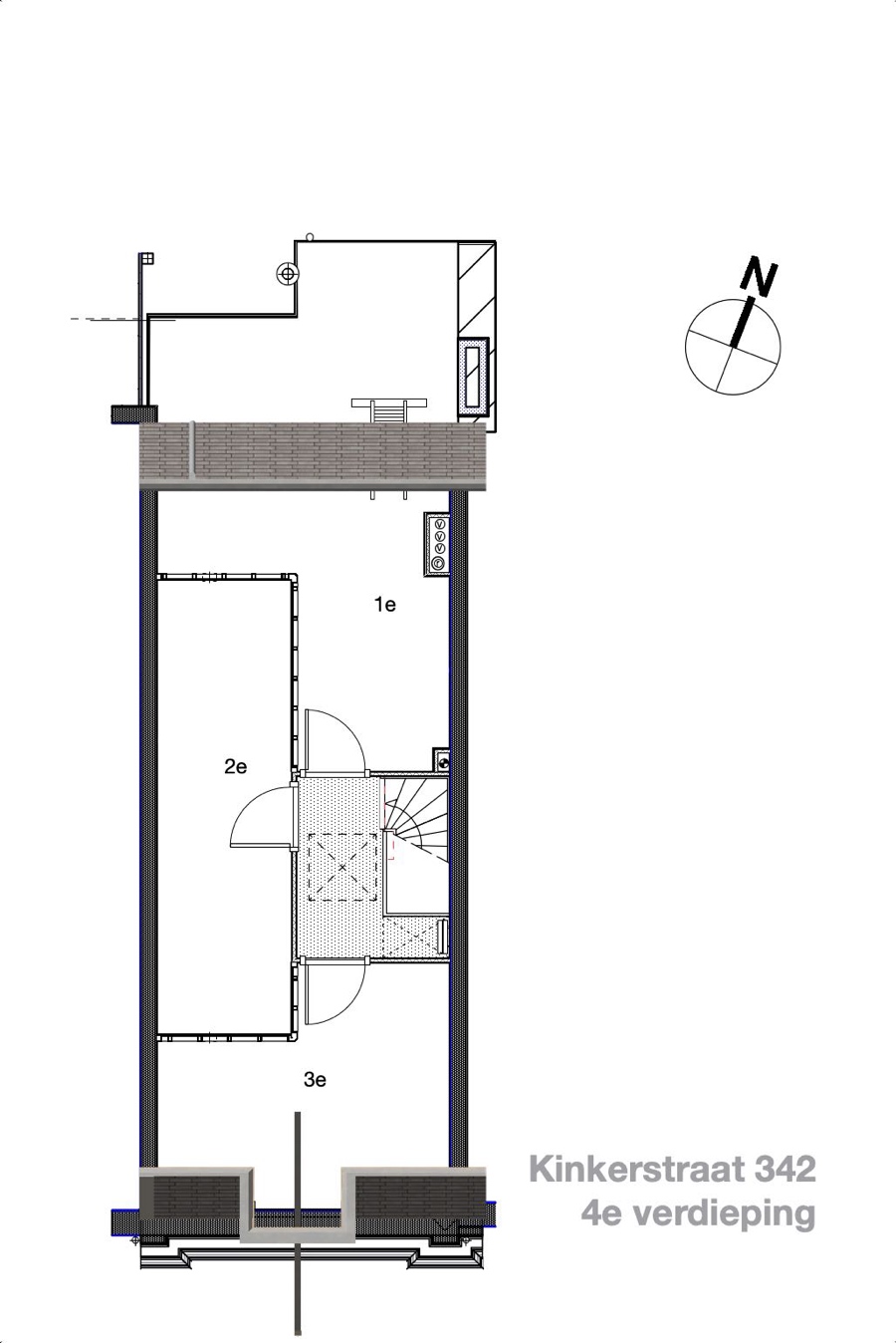
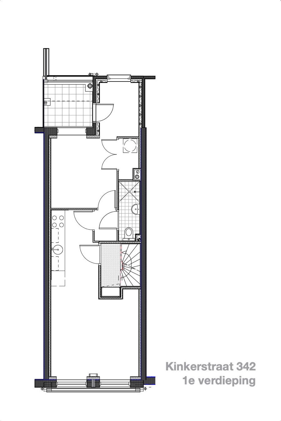
Kinkerstraat 342, Amsterdam

 

Renovatie


3 woningen, 1 bedrijfsruimte
Het project betreft de renovatie van één pand in stadsdeel West in Amsterdam.
Het pand maakt deel uit van een bouwstroom van 7 panden, in 1897 ontworpen door C.J. Veltman. Het project is in 1915 in enigszins aangepaste vorm voltooid. Het hele complex betreft momenteel de adressen Jan Pieter Heijestraat 54, 56 en Kinkerstraat 336 t/m 342. Oorspronkelijk was de begane grond van huisnummer 342 een woning. In 1926 is de begane grond verbouwd tot winkelruimte. Het ontwerp van de betreffende winkelpui is van P.A.J. Scheelbeek. De woningen en bedrijfsruimte zijn nadien diverse malen verbouwd.

Het pand is op hoogniveau gerenoveerd en de fundering is vernieuwd. Het pand is leeg gesloopt en heeft een nieuwe indeling gekregen. De, door Rochdale, opgekapte gevels van de panden op de hoek met de Jan Pieter Heijestraat zijn als voorbeeld gehanteerd voor de renovatie van de straatgevel. Aldus wordt de oorspronkelijke architectonische eenheid van het complex verstrekt.
De kozijnen in de straatgevel zijn geheel vervangen door houten kozijnen met authentiek detaillering. De hoogte van de tussendorpels is weer afgestemd op de positie van de speklagen. De bestaande winkelpui van kunststof en de portiek waren erg onaantrekkelijk. De toegang tot de BOG-ruimte bevond zich aan de straat. De portiek had daarmee zijn functie verloren en is daarom vervangen worden door een vlakke pui. De nieuwe houten pui heeft een indeling met twee deuren die iets verdiept in het gevelvlak liggen. De plint van hardsteen sluit aan bij de bedrijfsruimten op de hoek met de Jan Pieter Heijestraat.
Tijdens de sloopwerkzaamheden bleek dat het bovenlicht van de winkelpui uit 1926 nog aanwezig was. Mede in verband met het vrijwel onbeschadigde glas-in-lood is toen besloten dit bovenlicht te handhaven en het ontwerp van de nieuwe winkelpui daarop aan te passen.
Het energielabel voor gebouwen is verbeterd tot label A.

Het project is opgeleverd in juni 2024.
Bouwteam: Rochdale, Kruunenberg Architecten, Constructiebureau Tentij, B2-Restauratie.
Choose a location
Kinkerstraat 342
Kinkerstraat 342, Amsterdam
  • 20138=20241027 125027bGK
    20138=20241027 125027bGK
  • 20138=20241027 125035bGK
    20138=20241027 125035bGK
  • 20138=20241027 125052cGK
    20138=20241027 125052cGK
  • 20138=20241027 125107bGK
    20138=20241027 125107bGK
  • 20138=20241027 125120GK
    20138=20241027 125120GK
  • 20138=20241027 125159GK
    20138=20241027 125159GK
  • 20138=20241027 125210bGK
    20138=20241027 125210bGK
  • 20138=20241027 125225cGK
    20138=20241027 125225cGK
  • 20138=p20241028 291 2 V0
    20138=p20241028 291 2 V0
  • 20138=p20241028 291 3 V1
    20138=p20241028 291 3 V1
  • 20138=p20241028 291 4 V2 3
    20138=p20241028 291 4 V2 3
  • 20138=p20241028 291 5 V4
    20138=p20241028 291 5 V4
  • 20138=p20241028 321 1 voorgvl
    20138=p20241028 321 1 voorgvl
  • 20138=p20241028 321 2 achtergvl
    20138=p20241028 321 2 achtergvl
  • 20138=p20241028 391 1 3D voorgvl
    20138=p20241028 391 1 3D voorgvl
  • 20138=p20241028 391 2 3D achtergvl
    20138=p20241028 391 2 3D achtergvl
  • kinkerstraat 342 w01©kruunenberg
    kinkerstraat 342 w01©kruunenberg
  • kinkerstraat 342 w02©kruunenberg
    kinkerstraat 342 w02©kruunenberg
  • kinkerstraat 342 w03©kruunenberg
    kinkerstraat 342 w03©kruunenberg
  • kinkerstraat 342 w04©kruunenberg
    kinkerstraat 342 w04©kruunenberg
  • kinkerstraat 342 w05©kruunenberg
    kinkerstraat 342 w05©kruunenberg
  • kinkerstraat 342 w06©kruunenberg
    kinkerstraat 342 w06©kruunenberg
  • kinkerstraat 342 w07©kruunenberg
    kinkerstraat 342 w07©kruunenberg
  • kinkerstraat 342 w08©kruunenberg
    kinkerstraat 342 w08©kruunenberg
  • kinkerstraat 342 w09©kruunenberg
    kinkerstraat 342 w09©kruunenberg
  • kinkerstraat 342 w10©kruunenberg
    kinkerstraat 342 w10©kruunenberg
  • kinkerstraat 342 w11©kruunenberg
    kinkerstraat 342 w11©kruunenberg
  • kinkerstraat 342 w12©kruunenberg
    kinkerstraat 342 w12©kruunenberg
  • kinkerstraat 342 w13©kruunenberg
    kinkerstraat 342 w13©kruunenberg
  • kinkerstraat 342 w14©kruunenberg
    kinkerstraat 342 w14©kruunenberg
  • kinkerstraat 342 w15©kruunenberg
    kinkerstraat 342 w15©kruunenberg
  • kinkerstraat 342 w16©kruunenberg
    kinkerstraat 342 w16©kruunenberg